PCV型引导逆止阀
产品说明:
引导逆止阀 Pilot Operated Check Valves

选购指南 HOW TO ORDER
|
PCDV |
06 |
T |
D |
05 |
|
系列编号 SERIES NUMBER |
称呼口径 VALVE SIZE |
接续型号 TYPE OF CONNECTION G:SUB-PLATED TYPE T:THREAD TYPE F:FLANGE MOUNTING TYPE |
外部泄油 无记号:内部泄油 D:EXTERNAL DRAIN No symbol:internal drain |
启流压力 CRACKING PRESSURE |
性能表 SPECIFICATION
|
型式MODEL |
最大流量 MAX.FLOW (I/min) |
最高使用压力 MAX.OPERATED PRESSURE (kgf/cm²) |
启流压力 CRACKING PRESSURE (kgf/cm²) |
重量 WEIGHT(kg) |
||
|
配管型 THREAD TYPE |
座垫型 SUB-PLATE TYPE |
T TYPE |
G TYPE |
|||
|
PCV-04T |
PCV-03G |
75 |
250 |
05:0.5 50:5 |
3.7 |
4.2 |
|
PCDV-06T |
PCDV-06G |
125 |
250 |
6.3 |
7.0 |
|
|
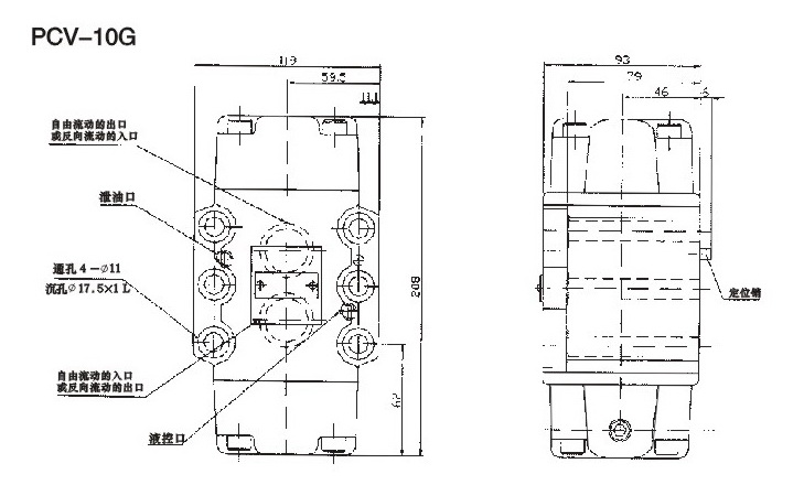
PCDV-10T |
PCDV-10G |
320 |
250 |
12.0 |
11.0 |
|
|
PCDV-16T |
PCDV-16F |
400 |
250 |
31.0 |
31.0 |
|
|
CPTS-03 |
50 |
250 |
0.7 |
|||

|
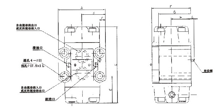
PCV-06G |
102 |
51 |
11.3 |
168 |
54 |
80 |
69 |
40 |
|
PCDV-06G |
89 |
44.5 |
11.1 |
144 |
50.6 |
68 |
59 |
35 |
|
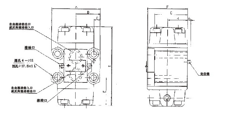
型号 |
A |
B |
C |
D |
E |
F |
G |
H |
|
PCV-10T |
140 |
70 |
208 |
104 |
35 |
92 |
45 |
84 |
79 |
1 |
|
PCV-06T |
96 |
48 |
168 |
84 |
26 |
78 |
38 |
70 |
60 |
3/4 |
|
PCV-04T |
86 |
40 |
150.5 |
75 |
21 |
68 |
35.5 |
58 |
41 |
3/8 |
|
型号 |
A |
B |
C |
D |
E |
F |
G |
H |
J |
K |
|
PCDV-06G |
102 |
51 |
11.3 |
168 |
54 |
80 |
69 |
40 |
|
PCDV-03G |
89 |
44.5 |
11.1 |
144 |
50.6 |
68 |
59 |
35 |
|
型号 |
A |
B |
C |
D |
E |
F |
G |
H |